Location: Milan,Italy
Type: Exhibition design / Visual design
Total area: mq
    Have you ever woken up from a dream feeling like you experienced hours of events, only to realise you were asleep for just a few minutes? 
    The central theme of the exhibition space is to simulate an environment visitors develop the feeling of falling in a dream which the time is different from normal world, learn, observe, experience, and eventually escape from it.
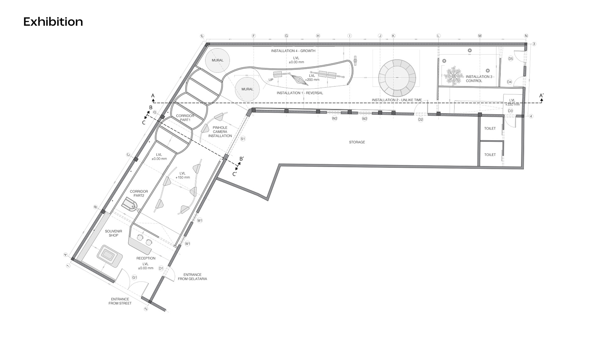
plan
plan
section
section
section
section
material board
material board
Zone 1 - Enter the brain
    The first part of the exhibition is developed to simulate the feeling of entry into the human brain, leading to an understanding of dreams and the related perception of time.
    The space is to consist of pinhole cameras that will provide certain facts and figures related to the topic. The visitors can look into them through the means of small openings and enjoy the experience by controlling the movement of these boxes by ground tracks, a metaphorical reference to exercising control over dreams.

sleep synthesis

figures of dreams

illumination

evolution

pinhole cameras - system detail drawing

zone 1 - pinhole cameras

Zone 2 - Adventure
    This zone serves as the main embodiment of the very idea of fast/slow. In this zone, the visitors are to embark on a journey of exploring how time moves in the world of dreams, ranging from scenography of sunrise to sunset, they will tread between components of locations ranging from America, and Europe to Asia, as to how scenes can easily be changed in a blink of an eye, replicating the dream, and have mystical experience of the speed of time. These will be supported by artistic objects that are unreal/out of scale, just like in a dream.
Installation 1 - Reversal
    The visitor is to sit on a swing, and as one swings, there's a mirrored world showcasing a waterfall moving against gravity behind them, providing the experience of reversing of time in slow motion.

zone 2 - reversal installation


Installation 2 - Unlike time
    A clock, is the most scientific and common way for people to understand the concept of time, the one on which we rely our daily routines. However, what if the clock you one is looking at, is actually slower or faster than the normal world?

zone 2 - unlike time installation

Installation 3 - Control
    In this dark space, visitors will be surrounded by four screens that showcases a time-lapse video of a busy crossroad. Visitors will be allowed to use a controller, which can control the speed of movement of the video, fast forward, slow down, stop or even reverse.

zone 2 - Shibuya crossroad installation

Installation 4 - Growth
    In this part, visitors can view the construction of a world—famous monument the Eiffel tower in phases, in relation to the cityscape. The relative speed of the construction of the monument in each phase will vary making it occur relatively faster of slower than as it happened in reality.

zone 2 - phases of growth installation

Zone 3 - Escape
    This space facilitates the entry of the visitor back into the real world, by getting rid of the dream, through the means of a corridor bridging the exit from the dream. It is created to provide a feeling of time turning back. At the end, by use of flashing light installation, the feeling of waking up and returning to real world will be simulated.

zone 3 - entrance of the escape corridor

zone 3 - escape corridor

clock shape wall - system detail drawing

Other views
reception
reception
zone 2
zone 2
souvenir shop
souvenir shop
Exhibition visuals

exhibition text guideline

poster
poster
flag
flag
online website
online website
ticket
ticket
bag
bag
guideline
guideline

You may also like

Back to Top